局部放电检测试验回路接线方法图及试验要求
局部放电测试系统试验回路的一般要求,叙述了几种用于测量局部放电参量的基本试验回路,并介绍了这些回路和系统的工作原理。
有关技术委员会还可以推荐用于特殊试品的特殊试验回路。只要可能,建议有关技术委员会用视在电荷作为被测参量,但对特殊情况也可以使用别的参量。
如果有关技术委员会未作规定,则4.2所述的任何试验回路以及第5章中所规定的任何测量系统均可使用。
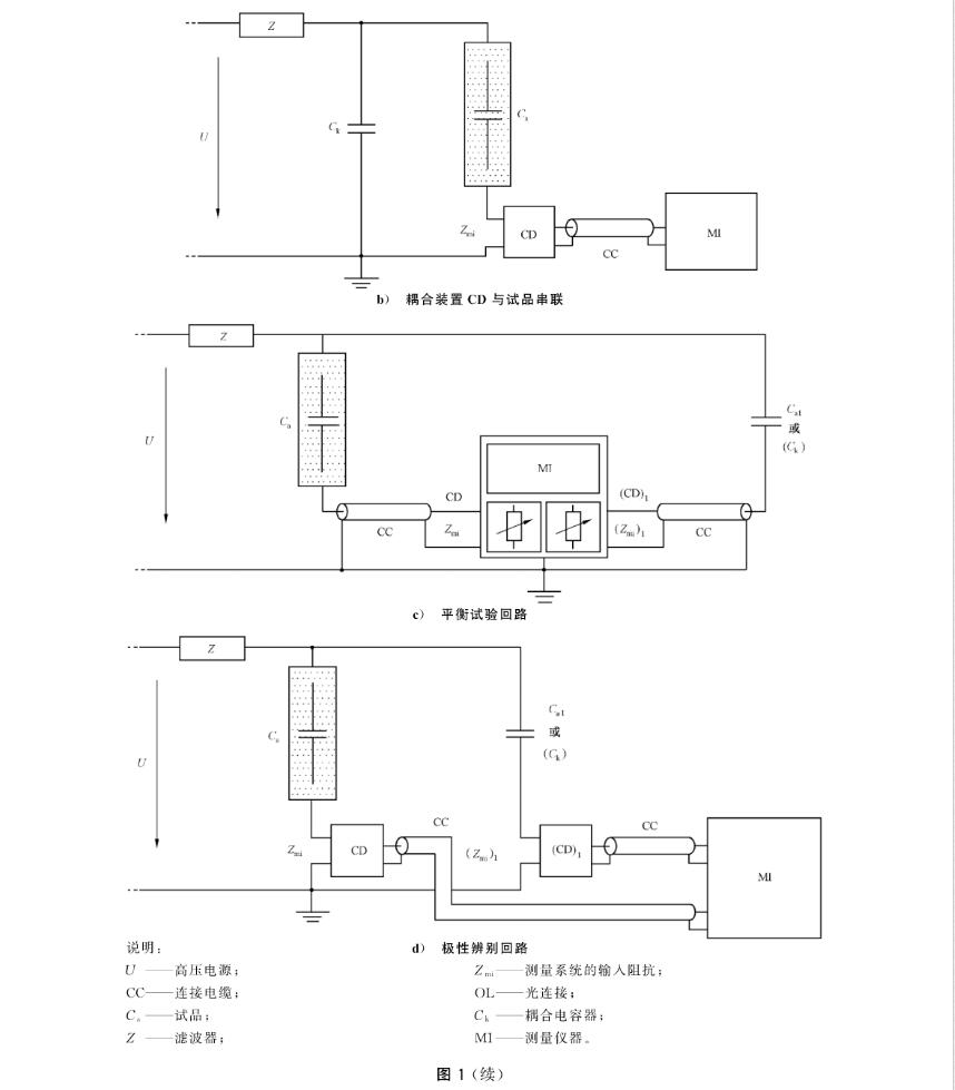
试验回路,用于局部放电测量的大多数回路可以由图1a)~图1d)所示的基本回路演变而来。图2和图3表示这些回路的一些变化,每个回路的组成主要有:
a) 试品,通常被认为是一个电容器Ca(参见附录D)。
b)耦合电容器Ck(应设计为低电感电容),或第二个试品Cn1(类似于试品Ca)。在规定的试验电压下Ck或Ca1均应具有足够低的局部放电水平,以便对规定的局部放电值进行测量。如果一个测量系统能够区分并分别测量来自试品和耦合电容器中的局部放电,那么允许Ck或Ca1具有较高的局部放电水平。
c)带输人阻抗的测量系统(对平衡回路,还需要第二个输入阻抗)。
d)背景噪声足够低的高压电源(见第6章和第7章),以便在规定试验电压下对规定的局部放电值进行测量。
e)背景噪声足够低的高压连接(见第6章和第7章),以便在规定试验电压下对规定的局部放电值进行测量。
f)有时在高压端接人一个阻抗或滤波器,以减小来自供电电源的背景噪声。
注:对于图1~图3所示的局部放电基本试验回路,其测量系统的耦合装置也可放在高压端,即耦合装置与Ca或Ck交换位置;这时可用光缆来连接耦合装置和测量仪器,如图1a)所示。
不同试验回路的其他情况及特性可参见附录C和附录H。













